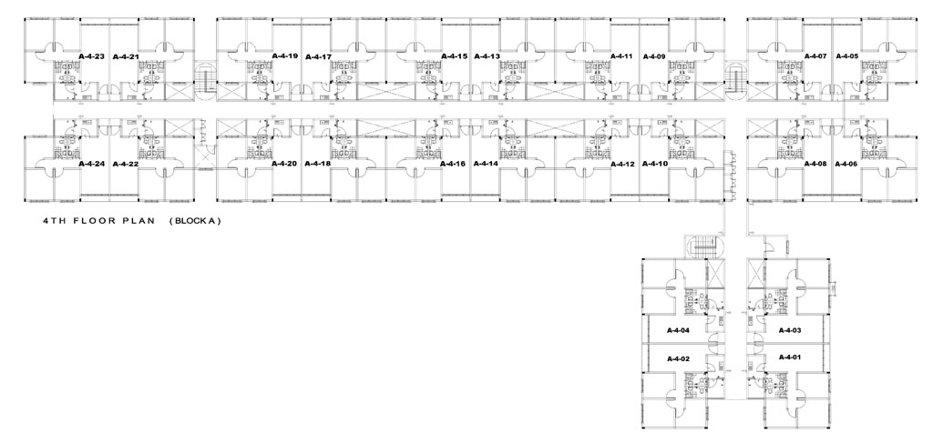
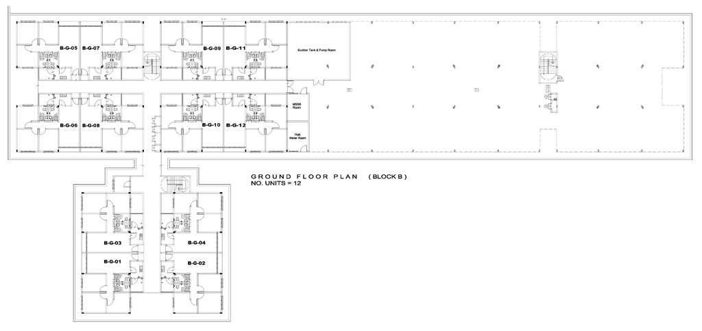
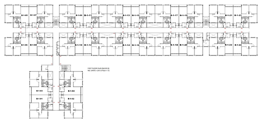
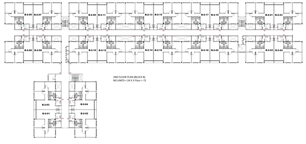
UNI RESIDENCES
UNI RESIDENCES TAPAH is the symbol of a new lifestyle in Tapah. This medium cost apartment promises a varieties and comfort to all prospective residents and promising ideal for investors.
Apartment located just 1KM from UiTM Tapah has superior access to public transportation such as the Malayan Railway and also “easy access” to the North-South Highway. Superior designs, 24 hours gated community security, steady population and many more amenities make this apartment “valuable investment” by all investors.
Call Now
+ 605 – 435 0212
+ 6019 – 285 6309
| Sales Gallery Operation Hours | |
| Monday – Saturday | 9:00am – 5:30pm | 
| Sunday | Closed | 
 
  
  
  
  
  
  
 



































